Superior Design Services
• We Install All Countertop Surfaces
• 30+ Years of Design Experience
• Outstanding Customer Service
Customized Design Services for Your Home
Make the most of your interior space with experienced design services from Wholesale Cabinet Design & Supply. We offer over 30 years’ experience to help you bring your unique ideas to life. 
Stop by today.
Great Results at Affordable Rates
You can rely on us to help you during a remodeling project. We work hard to offer you affordable pricing and long-lasting results.
For your convenience, we offer extended Saturday and evening hours by appointment, so don’t hesitate to contact us to get started.
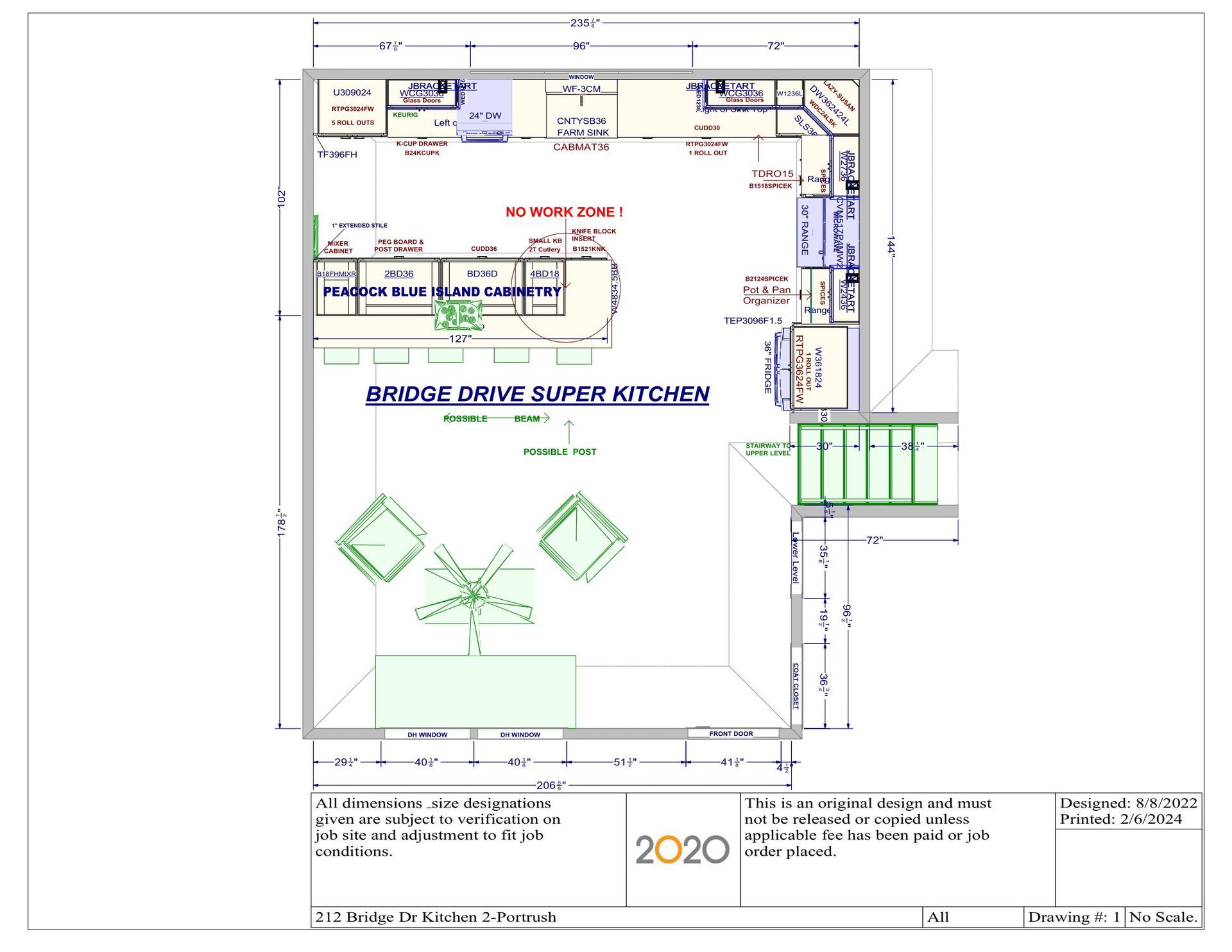
State-of-the-Art Design Capabilities
We utilize state-of-the-art technology to ensure your satisfaction, including design services with 3D views and pricing, field measures of the area and delivery of all products to your location.





Share On: